kerrostalo, 3h+kt+lasitettu parveke, 66,5 m² | 289000 €
Kirkkopuistikko 4
Moderni ja valoisa kolmio kuudennessa (6.) kerroksessa vuonna 2022 valmistuneessa taloyhtiössä erittäin halutulla alueella Vaasan keskustassa. Suurista ikkunoista ja parvekkeelta avautuu upeat ja avarat kaupunkimaisemat merelle ja Onkilahdelle. Talo sijaitsee lähellä ydinkeskustan palveluja ja kaikkia oppilaitoksia.
Tämä uudiskohde on laadukkaasti sisustettu. Avarasta olohuoneesta avautuu upeat näkymät ja tilasta on kulku lasitetulle parvekkeelle. Keittiötila yhtä tilaa olohuoneen kanssa. Molemmissa makuuhuoneissa vaatehuoneet ja toisessa lisäksi ranskalainen parveke. Kaikissa huonetiloissa on kaunis tammipintainen ohutpuulattia. Kylpyhuoneessa tilaa pesutornille. Koko asunnossa on vesikiertoinen lattialämmitys ja koneellinen ilmanvaihto sekä viilennys!
Taloyhtiö on kaukolämmössä ja sijaitsee omalla tontilla. Yhtiössä on sauna, pesutupa sekä urheiluvälinevarasto. Mahdollisuus ostaa autohallipaikka erillisinä osakkeina.
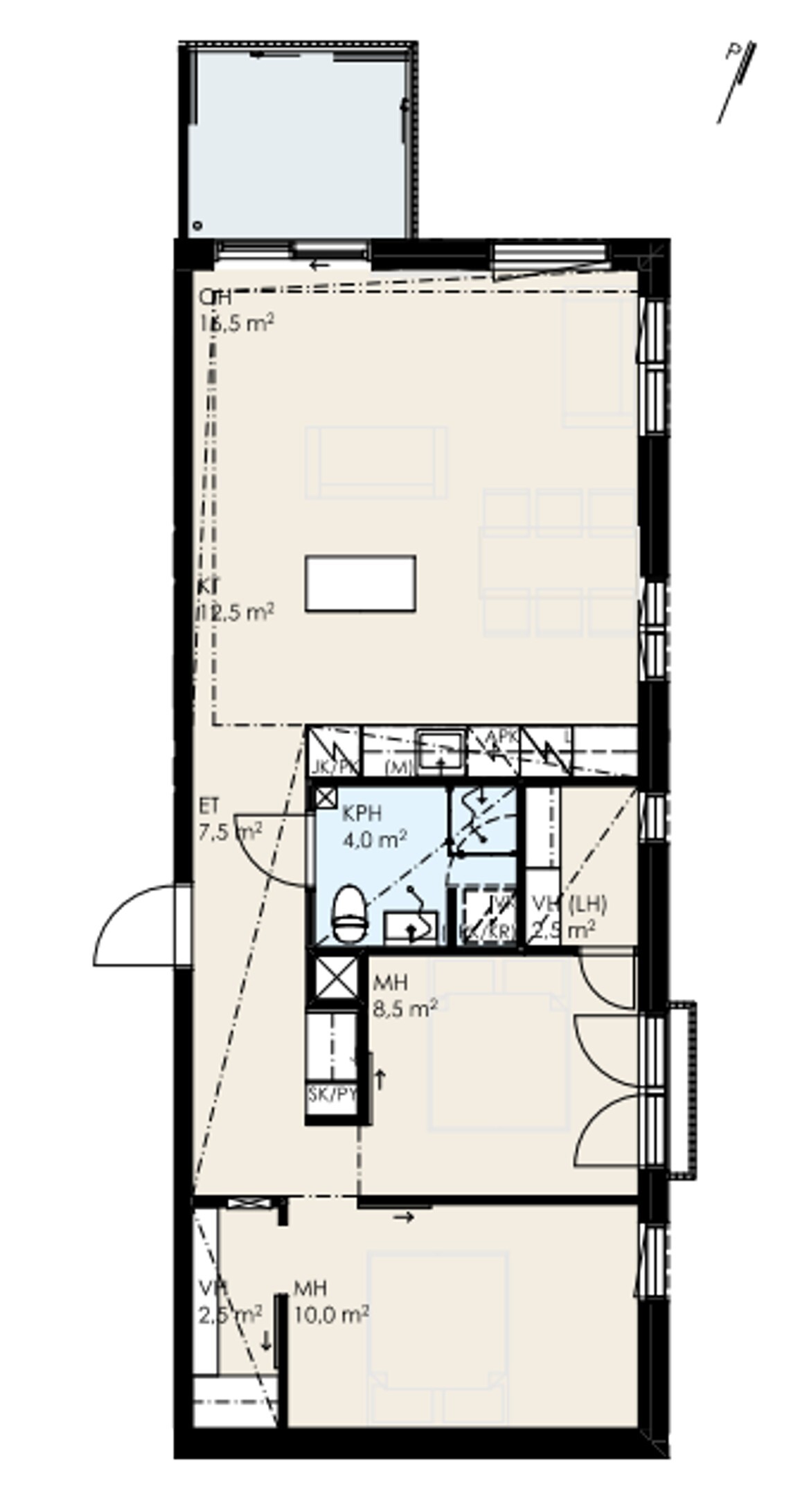
Denna moderna och ljusa trerummare i Vasa centrum ligger på sjätte våningen i ett våningshus byggt 2022. Från bostadens stora fönster öppnar sig en fantastisk och öppen stadsutsikt mot Metviken. Huset ligger nära service i centrum och Vasas läroanstalter.
Detta nybyggda objekt är smakfullt inrett. Det rymliga köket med köksö är i öppen förbindelse med det ljusa vardagsrummet, varifrån man har utgång till den inglasade balkongen. Båda sovrummen har egna klädrum, och det ena dessutom en fransk balkong. I alla rum finns ett vackert parkettgolv i ek. I badrummet finns plats för en tvättmaskin och torktumlare. Hela lägenheten har vattenburen golvvärme samt mekanisk ventilation och kylning.
Bostadsbolaget är anslutet till fjärrvärme, och i huset finns bastu, tvättstuga och cykelförråd. Fastigheten äger tomten. Möjlighet att köpa en bilplats i parkeringshallen som separat aktie.
Grundinformation
Läge
Vaasa Keskusta
Kirkkopuistikko 4, 65100 Vaasa
Kirkkopuistikko 4, 65100 Vaasa
Typ
kerrostalo
Ägandeform
oma
Skuldfrittpris
289000 €
Försäljningspris
86647 €
Skulddel
202353 €
Kvadratmeterpris
4346 €/m²
Byggnadsår
2022
Ibruktagningsår
2022
Beskrivning
3h+kt+lasitettu parveke
Utrymmen och utrustning
Eteisessä vaatekaappi.
Area
66.5 m²
Totala arean
66.5 m²
Allmänt skick
uusi
Mer information om skicket
Uudiskohde
Våning
6 / 8
Material, utrustning och uppvärmning
Taksort
Harjakatto
Takläggning
Pelti
Husbolag
Husbolagets namn
Asunto Oy Vaasan Elektra Bostads Ab
Utrymmen och utrustning
Kommande renovationer
Hallituksen kunnossapitotarveselvitys vuosille 2026-2032:
2026: Palovaroittimien pattereiden vaihto, aita toimitilan pohjoispäätyyn
2032: IV-kanavien nuohous ja säätö
Energiklass
B2018
Tomt ägande
Egen
Planläggning
Vaasan kaupunki 06 325 1111
Tomt och planläggning
Tomt område
3196 m²
Planläggnings status
asemakaava
Kostnader
Skötesvederlag
279,30 €
Finansieringsverderlag
1533,60 €
Husbloagets verderlag
1812,90 €
Övrig information om kostander
Varansiirtovero 1,5 %. Mikäli ostaja maksaa lainaosuuden pois, hän vastaa lainan poismaksuun liittyvistä kuluista, jotka taloyhtiön pankki ja isännöitsijä perivät.
Vesiennakko 20 €/hlö/kk - tasataan todellisen kulutuksen mukaan. Pesutupamaksu 5€/h.
Objektets beskrivning
Utsikter
Lasitettu parveke avautuu pohjoiseen ja itään.
Sovrum
Molemmissa makuuhuoneissa oma vaatehuone, toisessa ranskalainen parveke. Ohutpuulattia (tammi). Vesikiertoinen lattialämmitys.
Kök
Beskrivning
Keittiötila saarekkeella yhdistyy olohuoneeseen. Jääkaappi/pakastin, induktioliesi, liesituuletin, erillinen uuni sekä astianpesukone. Ohutpuulattia (tammi). Vesikiertoinen lattialämmitys.
Badrum
Beskrivning
Kylpyhuoneessa vesikiertoinen lattialämmitys sekä tilaa pesutornille.













