omakotitalo, 7h+k+erillinen saunarakennus+autotalli, 311 m² | 1649000 €
Västervikin Huvilatie
Uniikki kokonaisuus Vaasan Västervikissä! Lähes kuudentuhannen neliön kokoinen, länteen avautuva rantatontti tarjoaa runsaasti tilaa ja omaa rauhaa. Oma rantaviiva ja juuri uusittu hiekkaranta täydentävät kokonaisuuden.
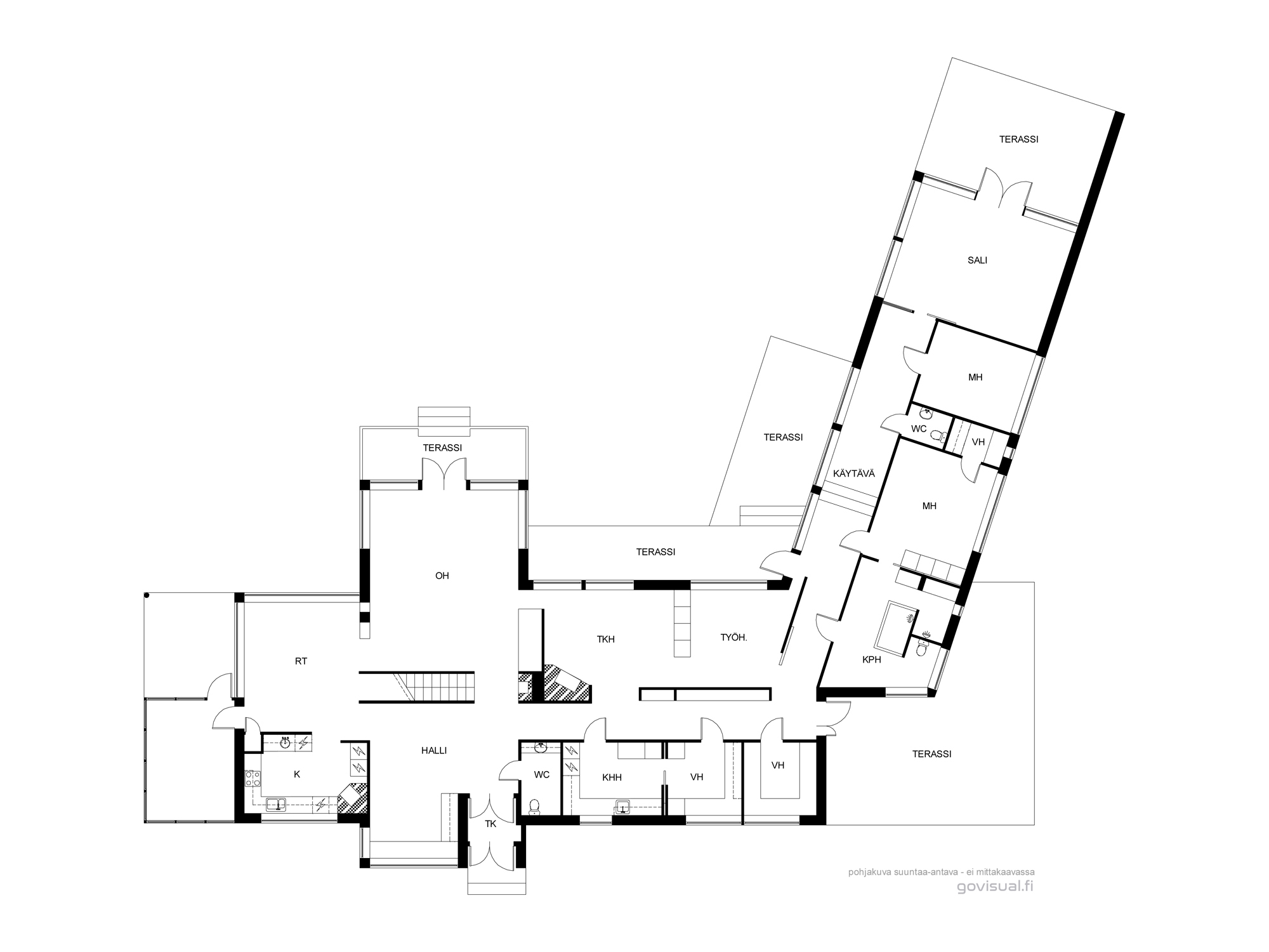
Arkkitehdin suunnittelema täystiilitalo on rakennettu kestämään aikaa, ja sen yksityiskohdissa korostuu tinkimätön laatu. Tammea ja mäntyä on käytetty kautta linjan – parketissa, ikkunakarmeissa ja sisäkaton pinnoissa – tuoden taloon lämpöä ja arvokkuutta. Talon keskipisteenä toimii hulppea olohuone, jossa huonekorkeus nousee yli kuuteen metriin ja suuret ikkunat tuovat luonnonvalon osaksi sisustusta. Lisäksi talosta löytyy parvi, erillinen oleskeluhuone, lasitettu terassi, makuuhuoneet, kylpyhuone, keittiö, ruokailutila, kirjasto, työhuone sekä kaksi vaatehuonetta.
Tilava ja lämmin autotalli kahdelle autolle tuo käytännöllisyyttä arkeen. Rannalla sijaitseva erillinen saunarakennus (2007) on paljon enemmän kuin vain sauna – sieltä löytyvät myös makuuhuone, keittiö ja oleskelutila, mikä tekee siitä täydellisen vierastalon. Rakennuksia ympäröivät suuret terassit kutsuvat viettämään aikaa ulkona, aivan rannan tuntumassa.
Sijainti on erinomainen: täällä saat nauttia luonnon rauhasta, meren läheisyydestä ja omasta yksityisyydestä, vaikka matka Vaasan keskustaan taittuu nopeasti ja vaivattomasti 15:ssä minuutissa.
Yhteydenotot: Benjamin Kurtén, 0445 647 764 / benjamin.kurten@annalakurten.fi
Unik helhet i Västervik i Vasa! Den nästan 6 000 m² stora strandtomten i västerläge erbjuder gott om utrymme och en känsla av lugn. Den egna strandlinjen med nyligen förnyad sandstrand fulländar helheten.
Det arkitektritade tegelhuset är byggt för att stå emot tidens tand, och i detaljerna märks kompromisslös kvalitet. Ek och tall återkommer genomgående – i parkettgolv, fönsterkarmar och innertakets ytor – och skapar en varm och gedigen atmosfär. Husets hjärta är det imponerande vardagsrummet, där takhöjden reser sig över sex meter och de stora fönstren släpper in naturen och ljuset som en del av inredningen. Utöver detta finns loft, separat sällskapsrum, inglasad terrass, sovrum, badrum, kök, matsal, bibliotek, arbetsrum samt två klädrum.
Det rymliga och uppvärmda garaget för två bilar underlättar vardagen. Vid stranden finns en separat bastubyggnad (2007) som är mycket mer än bara en bastu – här ryms även sovrum, kök och vardagsrum, vilket gör den till ett perfekt gästhus. De generösa terrasserna kring byggnaderna bjuder in till umgänge utomhus, alldeles vid strandkanten.
Läget är utmärkt: här får du njuta av naturens stillhet, närheten till havet och din egen avskildhet, samtidigt som du snabbt och smidigt når Vasa centrum på endast 15 minuter.
Förfrågningar: Benjamin Kurtén, 0445 647 764 / benjamin.kurten@annalakurten.fi
Ta kontakt
-
- Benjamin Kurtén
- benjamin.kurten@annalakurten.fi
- 044 564 7764
Grundinformation
Läge
Vaasa Västervik
Västervikin Huvilatie , 65280 Vaasa
Västervikin Huvilatie , 65280 Vaasa
Typ
omakotitalo
Skuldfrittpris
1649000 €
Försäljningspris
1649000 €
Kvadratmeterpris
5302 €/m²
Byggnadsår
1999
Ibruktagningsår
1999
Beskrivning
7h+k+erillinen saunarakennus+autotalli
Utrymmen och utrustning
Ruokailutila, kirjasto, työhuone, kaksi vaatehuonetta, parvi, erillinen oleskeluhuone.
Area
311.0 m²
Totala arean
311.0 m²
Allmänt skick
hyvä
Våning
1 / 1
Material, utrustning och uppvärmning
Golvmaterialets
Tammiparketti ja laattalattia asuintiloissa.
Takmaterialets
Sisäkatto kaarevaa mäntyvaneria sekä tammipanelia.
Huvudsakliga byggnadsmaterialet
Rakennus on täystiilitalo.
Taksort
Harjakatto
Takläggning
Tiilikate, räystäät pellitetty kuparipellillä.
Uppvärmningsanläggning
Hyvä
Husbolag
Tomt ägande
Egen
Tomt och planläggning
Tomt område
5995 m²
Planläggnings status
yleiskaava
Kostnader
Övrig information om kostander
Varainsiirtovero 3%.
Objektets beskrivning
Sovrum
Päämakuuhuoneesta kulku kylpyhuoneeseen.
Kök
Beskrivning
Tilava keittiö, joka yhdistyy ruokailutilaan. Liesi, liesituuletin, uuni, mikroaaltouuni, Högfors puuliesi.
Badrum
Beskrivning
Tilava, ikkunallinen kylpyhuone. Kulku päämakuuhuoneeseen. Poreamme.






































