kerrostalo, 3h+kk+parveke, 57 m² | 845 €
Hovioikeudenpuistikko 3
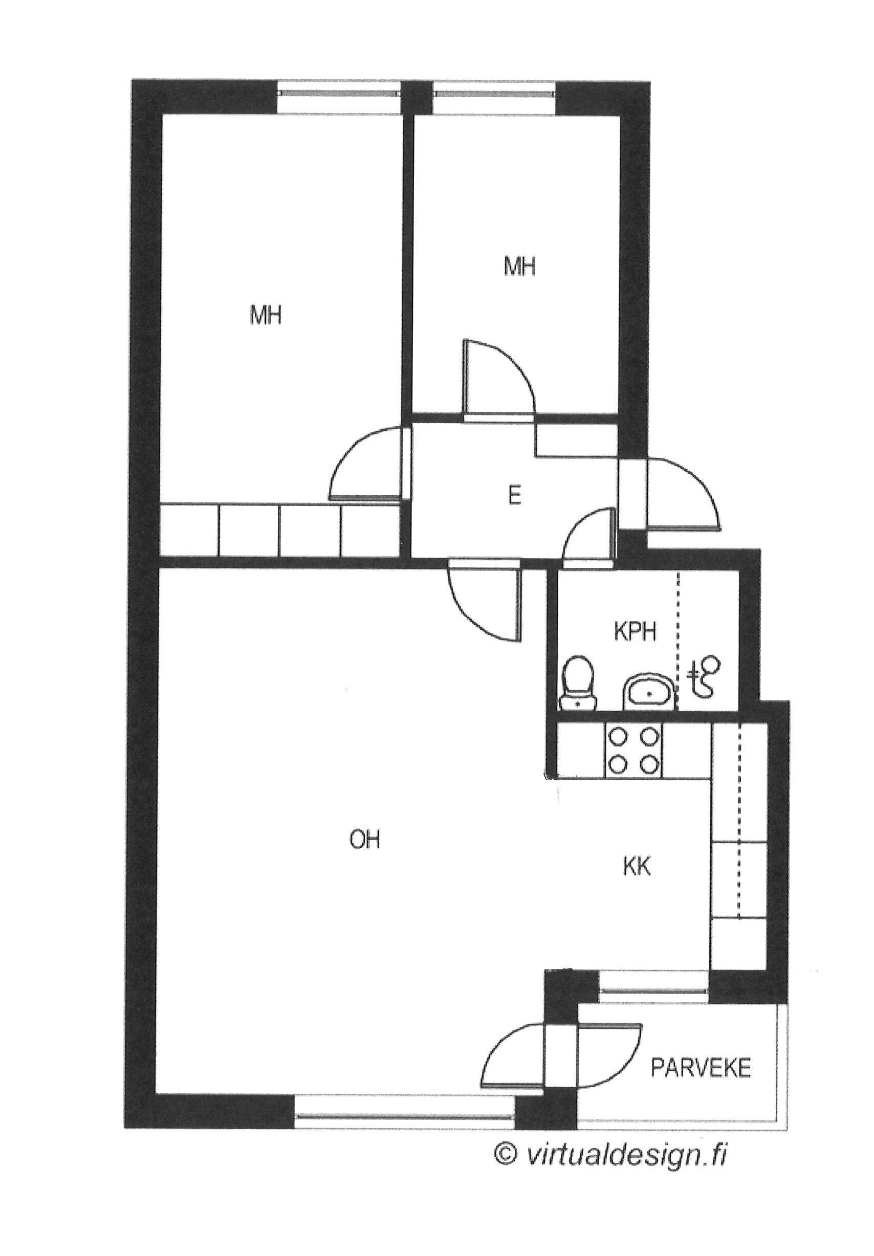
Hyväkuntoinen kolmio lähellä merta ja hovioikeudenpuistoa. Hyvin käytetyt neliöt; tilava, kaunis keittokomero, joka yhdistyy isoon olohuoneeseen, toinen makuuhuoneista erittäin tilava. Ikkunat ja parvekeovet uusittu koko yhtiössä. Länsiparveke, 2. kerros.
Heti vapaa!
Trea i bra skick nära stranden och hovrättsparken. Bra planlösning; rymlig, vacker kokvrå förbindelse med vardagsrummet, ett av sovrummen mycket rymligt. Fönster och balkongdörrar är förnyade i hela husbolaget. Västbalkong, 2. våningen.
Genast ledig!
Ota yhteyttä
- Oscar Kurtén
- oscar.kurten@annalakurten.fi
- 044 064 8864
Perustiedot
Sijainti
Vaasa Keskusta
Hovioikeudenpuistikko 3, 65100 Vaasa
Hovioikeudenpuistikko 3, 65100 Vaasa
Tyyppi
kerrostalo
Vuokra
845,00 €
Rakennusvuosi
1955
Käyttöönottovuosi
1955
Kuvaus
3h+kk+parveke
Asuinpinta-ala
57.0 m²
Kokonaispinta-ala
57.0 m²
Yleiskunto
hyvä
Kerros
2 / 3
Materiaalit, varusteet ja lämmitys
Säilytystilojen kuvaus
Taloyhtiön yhteisissä tiloissa huoneistokohtaiset kellari- ja vinttikomero.
Kattotyyppi
Harjakatto
Kate
Pelti
Taloyhtiö
Taloyhtiön nimi
Asunto Oy Hovipuistikko Bostads Ab
Tilat ja varustelu
Tontti ja kaavoitus
Tontin pinta-ala
1043,5 m²
Kustannukset
Vesimaksu
15,00 €
Lisätietoa maksuista
Vesiennakkomaksu 15/hlö/kk. Tasauslasku kulutuksen mukaan. Vuokralainen tekee oman sähkösopimuksen sekä ottaa vastuuosan kattavan kotivakuutuksen.
Kohteen kuvaus
Näkymät
Keittiöstä, parvekkeelta ja olohuoneesta länteen, makuuhuoneista itään taloyhtiön sisäpihalle.
Makuuhuoneet
Toinen makuuhuone on erittäin tilava. Molemmissa vaatekaapistot.
Keittiö
Kuvaus
Kaunis ja tilava keittokomero. Valkoisen- ja pähkinänsävyiset kaapistot, jääpakastinkaappi, liesi, liesituuletin, astianpesukone.
Pesutilat
Kuvaus
Suihku ja pesukoneliitäntä.









