kerrostalo, 1722 m² | 1850000 €

Kirkkopuistikko 4

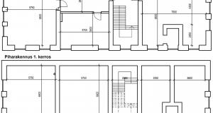
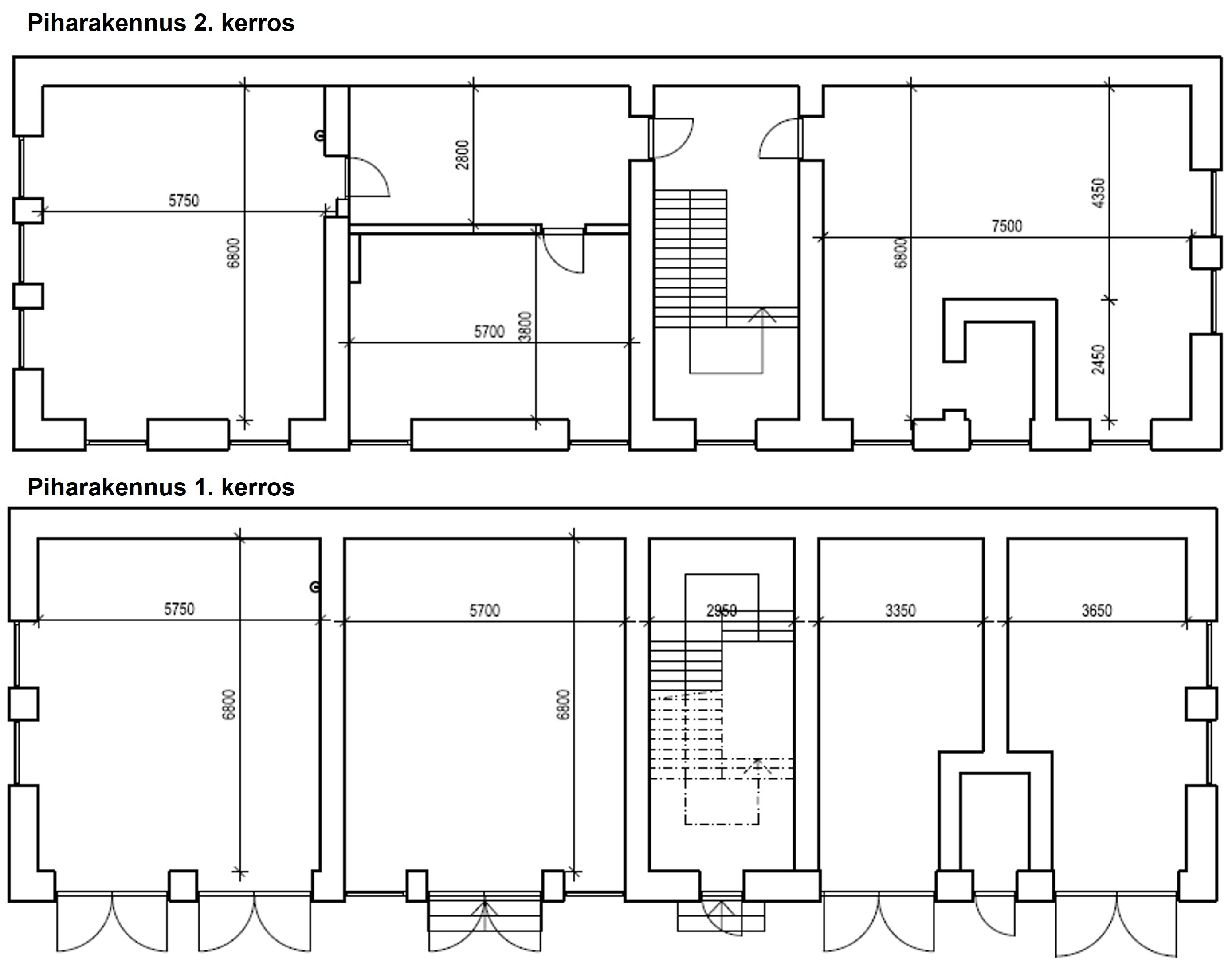
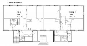
Halutulla sijainnilla Vaasan keskustassa lähellä rantaa ja Palosaaren kampusaluetta 1930-luvulla rakennettu kiinteistökokonaisuus. Osoitteessa Kirkkopuistikko 4 sijaitseva nelikerroksinen kerrostalo (Vaasan Sähkön entinen pääkonttori), ja Museokadun varrella pienempi, kaksikerroksinen pienkerrostalo. Piha-alueella on myös erillinen autotallirakennus. Rakennuksissa on tehty paljon korjauksia 2010-luvun loppupuolella. Kiinteistö omistaa määräosan (2585/4925) tontista ja rakennukset on liitetty kaukolämpöverkkoon. Tämä kokonaisuus on osa Kiinteistö Oy Vaasan Kirkkopuistikko 4:n konkurssipesää. Tiedustelut ja tarjoukset: Tomas Kurtén 0400 827 947 tomas.kurten@annalakurten.fi Med ett eftertraktat läge i centrum, nära stranden och Brändös campusområde, ligger detta fastighetskomplex från 1930-talet. På adressen Kyrkoesplanaden 4 ligger ett fyravåningshus (tidigare huvudkontor för Vasa Elektriska), och längs Museigatan finns ett mindre tvåvåningshus. På gårdsområdet finns även en garagebyggnad. Byggnaderna har delvis renoverats i slutet av 2010-talet. Fastigheten äger en andel om 2585/4925 av tomten och byggnaderna är anslutna till fjärrvärmenätet. Denna helhet är en del av Kiinteistö Oy Vaasan Kirkkopuistikko 4 konkursbo. Förfrågningar och anbud: Tomas Kurtén 0400 827 947 tomas.kurten@annalakurten.fi
Perustiedot
Sijainti
Vaasa Keskusta
Kirkkopuistikko 4, 65100 Vaasa
Tyyppi
kerrostalo
Velaton hinta
1850000 €
Myyntihinta
1850000 €
Neliöhinta
1074 €/m²
Rakennusvuosi
1931
Asuinpinta-ala
1722.0 m²
Kokonaispinta-ala
2443.0 m²
Yleiskunto
ei luokiteltu
Lisätietoa kunnosta
Rakennuksisssa tehty perusparannuksia 2015-2019.
Kerros
1 / 4
Materiaalit, varusteet ja lämmitys
Pääasiallinen rakennusmateriaali
Rakennuksissa rapatut ulkoseinät. Kirkkopuistikko 4: tiilirakenteinen (4 kerrosta). Museokatu 7 ja autotallirakennus: hirsirakenteiset (2 kerrosta).
Kattotyyppi
Aumakatto ja harjakatto
Kate
Pelti
Taloyhtiö
Tontin omistus
Oma
Lisätietoja kaavoituksesta
Vaasan kaupunki 06 325 1111
Tontti ja kaavoitus
Tontin pinta-ala
3196 m²
Kaavoitustilanne
asemakaava
Kustannukset
Lisätietoa maksuista
Varainsiirtovero 3,0 % Ennen konkurssia kertyneet ostovelat, noin 22 300 euroa (hulevesi-, jätevesi- ja vesimaksuja), tulevat ostajan maksettaviksi.
Kohteen kuvaus