kerrostalo, 3h+kt+lasitettu parveke, 66,5 m² | 1650 €
Kirkkopuistikko 4
Moderni ja valoisa kolmio kuudennessa (6.) kerroksessa vuonna 2022 valmistuneessa taloyhtiössä erittäin halutulla alueella Vaasan keskustassa. Suurista ikkunoista ja parvekkeelta avautuvat upeat maisemat merelle ja Onkilahdelle. Talo sijaitsee lähellä ydinkeskustan palveluja ja kaikkia oppilaitoksia.
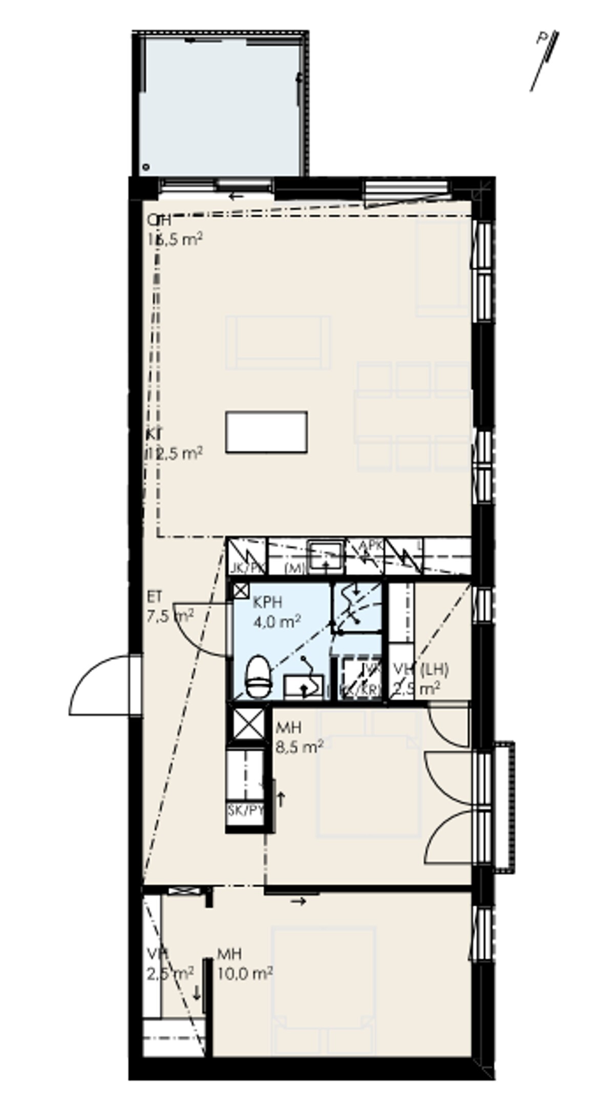
Avarasta olohuoneesta upeat näkymät - tilasta on kulku lasitetulle parvekkeelle merinäkymin. Keittiötila yhtä tilaa olohuoneen kanssa. Molemmissa makuuhuoneissa vaatehuoneet ja toisessa lisäksi ranskalainen parveke. Kaikissa huonetiloissa on kaunis tammipintainen ohutpuulattia. Kylpyhuoneessa tilaa pesutornille.
Koko asunnossa on vesikiertoinen lattialämmitys ja koneellinen ilmanvaihto sekä viilennys!
Yhtiössä on sauna, pesutupa sekä urheiluvälinevarasto. Mahdollisuus vuokrata autohallipaikka hintaan 75 e/kk. Mahdollista vuokrata asunto myös kalustettuna - vuokrasta sovitaan siinä tapauksessa erikseen.
Asunto on heti vapaa!
Denna moderna och ljusa trerummare i Vasa centrum ligger på sjätte våningen i ett våningshus byggt 2022. Från bostadens stora fönster öppnar sig en fantastisk och öppen stadsutsikt mot Metviken. Huset ligger nära service i centrum och Vasas läroanstalter.
Det rymliga köket med köksö är i öppen förbindelse med det ljusa vardagsrummet, varifrån man har utgång till den inglasade balkongen. Båda sovrummen har egna klädrum, och det ena dessutom en fransk balkong. I alla rum finns ett vackert parkettgolv i ek. I badrummet finns plats för en tvättmaskin och torktumlare. Hela lägenheten har vattenburen golvvärme samt mekanisk ventilation och kylning!
I huset finns bastu, tvättstuga och cykelförråd. Möjlighet att hyra en bilplats i parkeringshallen för 75 e/mån. Möjlighet att hyra lägenheten möblerad - hyran avtalas separat.
Genast ledig!
Ota yhteyttä
- Oscar Kurtén
- oscar.kurten@annalakurten.fi
- 044 064 8864
Perustiedot
Sijainti
Vaasa Keskusta
Kirkkopuistikko 4, 65100 Vaasa
Kirkkopuistikko 4, 65100 Vaasa
Tyyppi
kerrostalo
Vuokra
1650,00 €
Rakennusvuosi
2022
Käyttöönottovuosi
2022
Kuvaus
3h+kt+lasitettu parveke
Asuinpinta-ala
66.5 m²
Kokonaispinta-ala
66.5 m²
Yleiskunto
hyvä
Kerros
6 / 8
Materiaalit, varusteet ja lämmitys
Kattotyyppi
Harjakatto
Kate
Pelti
Taloyhtiö
Taloyhtiön nimi
Asunto Oy Vaasan Elektra Bostads Ab
Tilat ja varustelu
Tulevat remontit
Hallituksen kunnossapitotarveselvitys vuosille 2026-2032:
2026: Palovaroittimien pattereiden vaihto, aita toimitilan pohjoispäätyyn
2032: IV-kanavien nuohous ja säätö
Energialuokka
B2018
Tontti ja kaavoitus
Kustannukset
Vesimaksu
20,00 €
Lisätietoa maksuista
Vuokralainen vastaa sähkösopimuksesta ja ottaa vastuuosan kattavan kotivakuutuksen.
Kohteen kuvaus
Makuuhuoneet
Molemmissa makuuhuoneissa oma vaatehuone, toisessa ranskalainen parveke. Ohutpuulattia (tammi). Vesikiertoinen lattialämmitys.
Keittiö
Kuvaus
Keittiötila saarekkeella yhdistyy olohuoneeseen. Jääkaappi/pakastin, induktioliesi, liesituuletin, erillinen uuni sekä astianpesukone. Ohutpuulattia (tammi). Vesikiertoinen lattialämmitys.
Pesutilat
Kuvaus
Kylpyhuoneessa vesikiertoinen lattialämmitys sekä tilaa pesutornille.











